常宁·壹中心 | 生态教育核芯,城市人文著区!
文章来源:壹中心公众号
2025-02-14
访问次数:303
好房推荐
-
壹中心 更多详情>>4000元/㎡地址:常宁市政府大楼西面
常宁壹中心位于市政府西,东依城市主轴青阳大道,西至常衡路,北通常茶高速公路,交通便捷,项目处于新老城区的交汇处,享新老城区成熟的配套设施。常宁壹中心集萃商场、5A甲级写字楼、铂金级商务酒店、电影院、五星级奢华美宅等于一体的城市中心地标综合体。

建筑效果图
常宁·壹中心广场一步之遥常宁市政府,东南正对常宁城市广场,紧邻潭水河风光带,生态雅境举步即享。项目与宜城小学、百年名校常宁一中(合江中学)、湘南实验中学等学府为邻,助力孩子梦想未来。

酒店效果图
项目自建约3万㎡全时空体验式文旅购物中心,引进维也纳国际酒店,长沙酷贝拉青少年素质教育基地,上海联华超市等知名品牌商业,打造片区繁华高地,家门前吃喝玩乐一站搞定。

项目区位图
项目将自由浪漫的新现代风情引入规划中,以其富于装饰、简于构造的特色,通过绚丽多彩的绿化植被群,营造安逸宁静的社区园林。大面积的社区绿化率,搭配庭院式的绿化模式,全龄主题设计,营造全家人的尊崇自然空间。
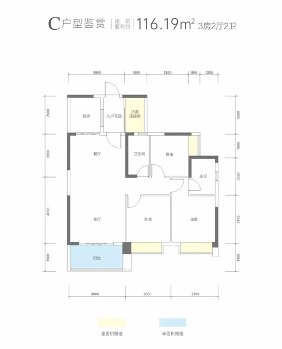
户型图鉴赏




项目地址:常宁市政府大楼西面
免责声明:本网站宗旨为广大用户免费提供信息服务,数据来源互联网,本站不声明或保证所展示的信息准确性和完整性,仅供参考使用。购房者参考本站信息,进行房屋交易所造成的任何后果与本网站无关。网站所提户型面积均指建筑面积。所涉及房价报价时间:2025年02月14日,价格有效期30天,该价格为参考价格,实际价格以政府及开发商公布为准。