在售户型
详情
动态
户型
图库
主页
全部(
0
)
2室(
2
)
3室(
8
)
4室(
3
)
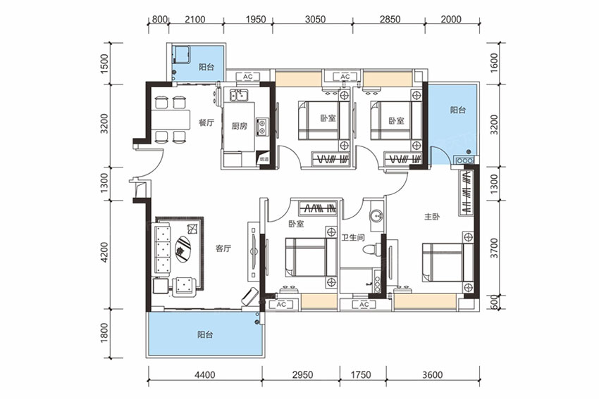
4室2厅2卫
135.00㎡
D户型(西边户)
在售
70
万
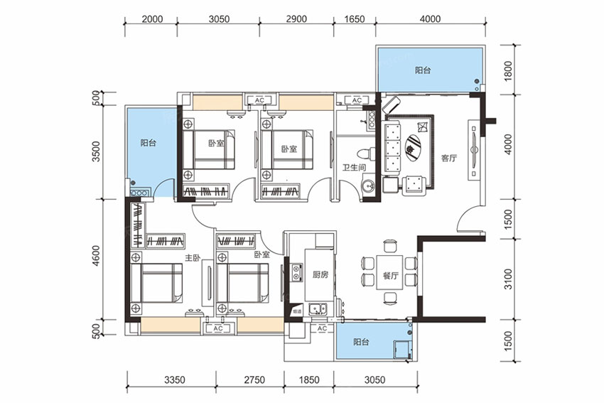
4室2厅1卫
139.00㎡
F户型(东边户)
在售
72
万
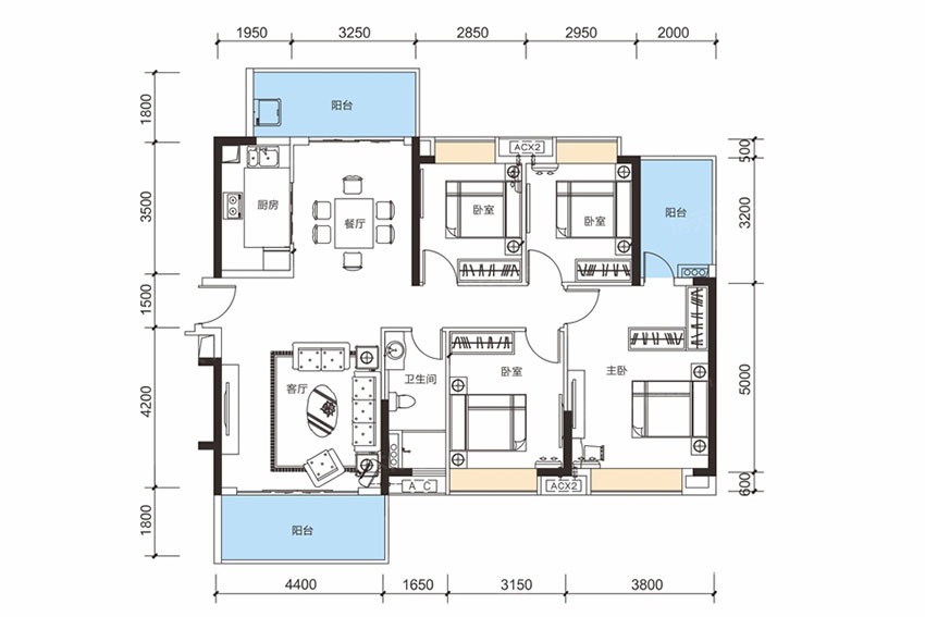
4室2厅2卫
148.00㎡
C户型(4#东边,5#西边)
在售
77
万
免责声明:
本网站宗旨为广大用户免费提供信息服务,数据来源互联网,本站不声明或保证所展示的信息准确性和完整性,仅供参考使用。购房者参考本站信息,进行房屋交易所造成的任何后果与本网站无关。网站所提户型面积均指建筑面积。投诉电话:400-0736-088
拨打电话
预约看房