梧桐庄园
-
楼盘均价 :
房贷计算器 6000元/㎡
报价时间:2025-12-06,有效期30天,为参考价,具体以开发商为准!
- 开盘时间 :
- 建筑面积 :
- 占地面积 :
- 楼盘地址 :
订阅消息将通过短信及推送等形式通知您
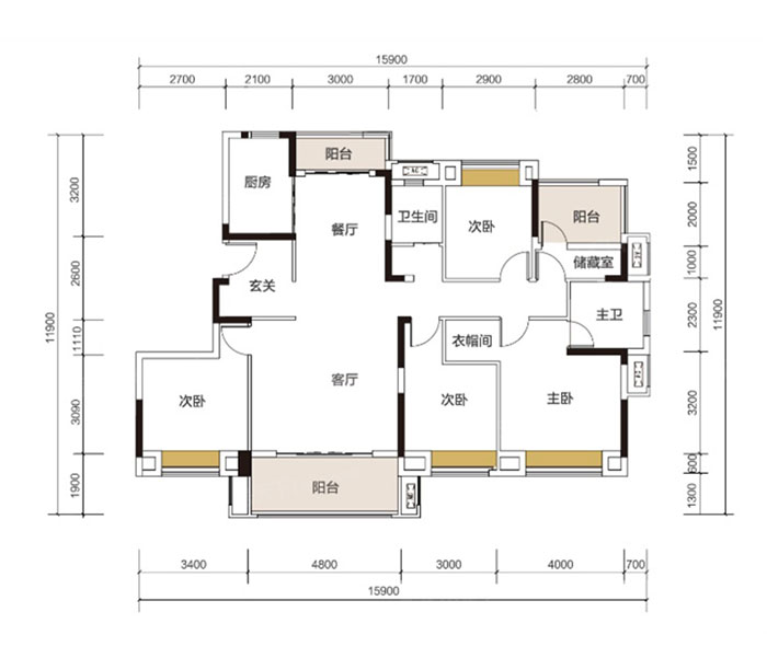
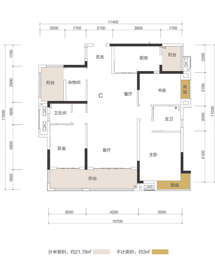
主力户型
查看全部位置周边
公交
教育
医疗
购物
生活
娱乐
楼盘介绍
美的梧桐庄园位于珠晖区衡州大道东48号(师院旁、酃湖公园畔),项目总占地约450亩,总建筑面积约75万方,总规划4758户,车位1:1.1,采用的是人车分流的人性化设计,项目容积率仅2.3。项目涵盖电梯花园洋房、小高层、品质高层、风情街区等多种物业形态,打造衡阳低密度法式城邦,开发商:湖南中库投资有限公司、美的置业。
您可能感兴趣的楼盘
更多
免责声明:本网站宗旨为广大用户免费提供信息服务,数据来源互联网,本站不声明或保证所展示的信息准确性和完整性,仅供参考使用。购房者参考本站信息,进行房屋交易所造成的任何后果与本网站无关。网站所提户型面积均指建筑面积。投诉电话:400-0736-088









