金茂洞庭生态创新城
-
楼盘均价 :
房贷计算器 7100元/㎡
报价时间:2025-12-06,有效期30天,为参考价,具体以开发商为准!
- 开盘时间 :
- 建筑面积 :
- 占地面积 :
- 楼盘地址 :
订阅消息将通过短信及推送等形式通知您
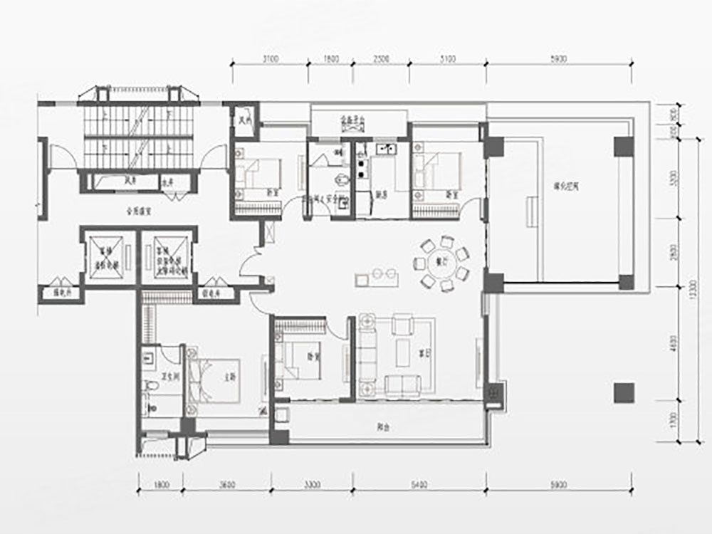
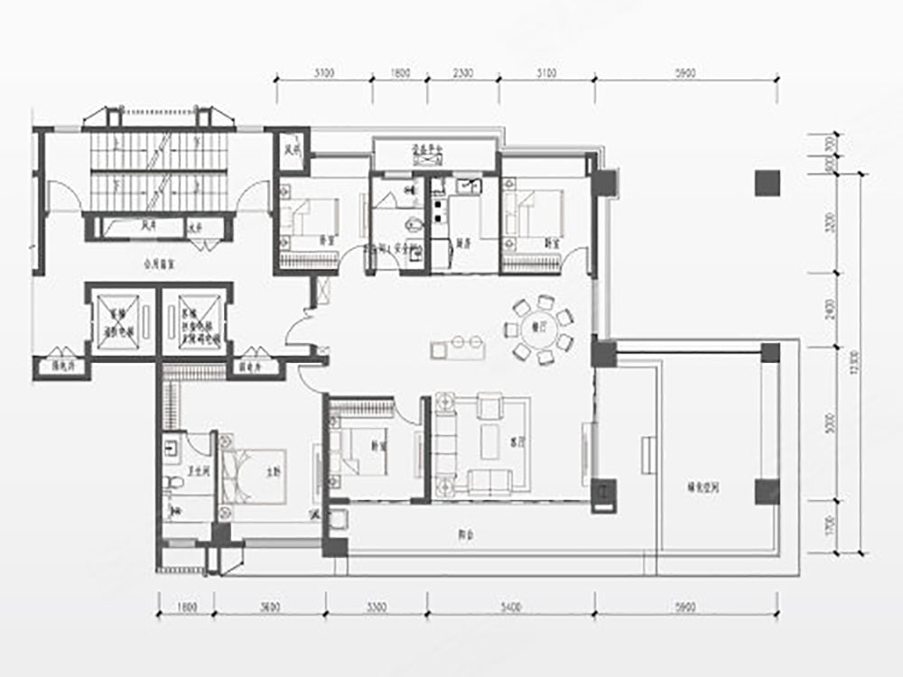
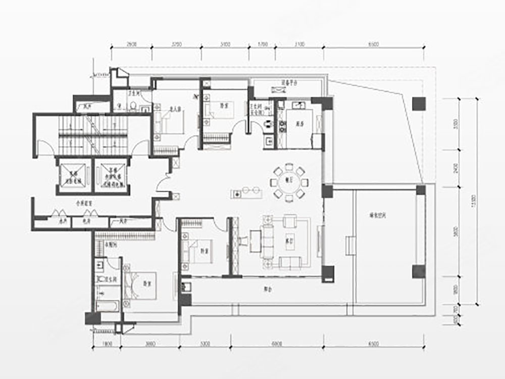
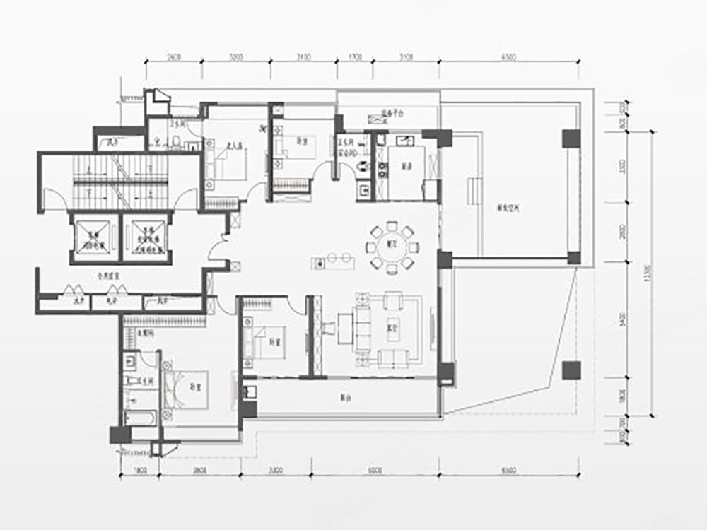
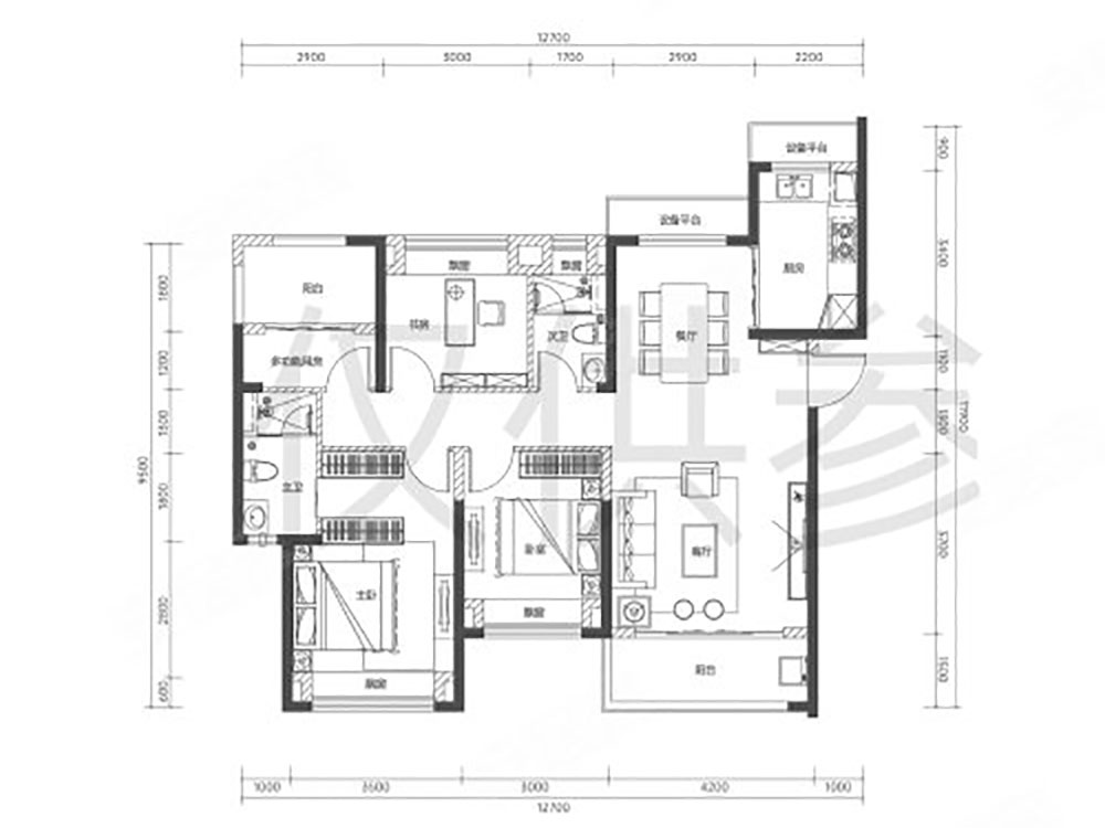
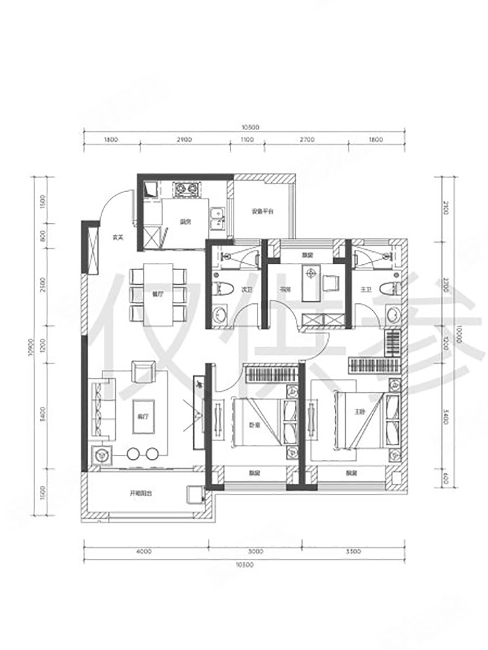
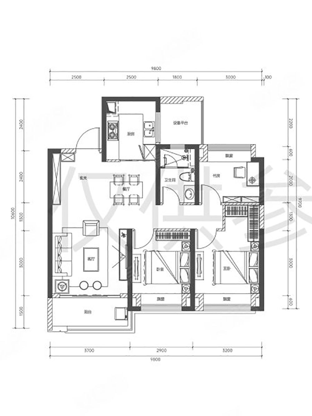
主力户型
查看全部位置周边
公交
教育
医疗
购物
生活
娱乐
楼盘介绍
岳阳洞庭生态创新城项目总占地666亩,总计容面积达到134万方,倾心打造一座集高端住宅、九年制名校、酒店式公寓、星级酒店、5A写字楼、ShoppingMall、主题商业街等于一体的城市中心,通过城一人一产的城市运营,助力岳阳新发展。
您可能感兴趣的楼盘
更多
免责声明:本网站宗旨为广大用户免费提供信息服务,数据来源互联网,本站不声明或保证所展示的信息准确性和完整性,仅供参考使用。购房者参考本站信息,进行房屋交易所造成的任何后果与本网站无关。网站所提户型面积均指建筑面积。投诉电话:400-0736-088











