阳光臻城 | 一生奢享,九好社区!
-
阳光臻城 更多详情>>7800元/㎡地址:衡阳市船山路与华新大道交汇处(
拓兴阳光臻城由衡阳拓金房产倾力打造,项目位于衡阳市船山路与华新大道交汇处(阳光小学北面),占地48.46亩,总建筑面积11.9万方,地理位置优越,配套成熟。

鸟瞰图
一、好地段
华新成熟核芯生活区,一站式全优配套
阳光臻城坐拥华新成熟生活圈,周边集结: 银泰百货、衡成广场、步步高商场;平湖公园、生态公园、廉溪公园;中心医院、南华附二、南华附一医院等为代表的城市优质配套资源,该区域是衡阳理想生活的居住地。

区位图
二、好教育
名校环伺,一站式名优教育
众多名校环伺,下楼即达阳光小学,同时项目还坐拥华新1公里名校优教圈:(柘里渡小学、祝融路小学、衡阳市一中、船山实验中学),从幼儿园到高中一站式名优教育。
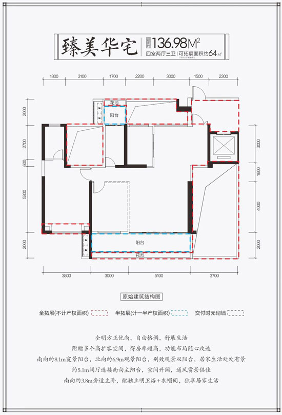
三、好户型
两梯两户纯板房,高得房率
项目整体规划采用围合式布局设计,整栋建筑采用南北通透,户户配备南北双阳台,充分保证每一户景观视野及通风,建筑面积约129-180㎡四—五房,高得房率高。


户型图
四、好园林
禅意新中式园林,衡阳人居新标杆
项目重金引进园林设计团队,打造山水九景东方美学园林,以“藏山雅居,山水隐奢”为主线,呈“一脉、两院、九景”的空间布局,让您领略雅致诗意的东方美学。

园林示意图
五、好建筑
新中式建筑,惊艳世界的东方美学
拓兴集团斥巨资打造新中式风格美宅,住宅外立面设计采用新中式风格选材,精益求精,造型富美感,让整栋建筑更显端庄、高雅。

建筑效果图
六、好实力
本土标杆,20年造城经验,品质有保障
20载拓兴品牌,城市功勋开发商,集20年造城精髓,深受广大业主致好评,品牌实力有保障,让您安心筑家。

示意图
七、好交通
接驳城市主干道,生活半径随意切换
项目地理位置优越,紧邻石鼓区收费站、衡阳东高铁站等,多条公交线路经过(140路、104路、181路、132路、113路、170路),交通出行非常便利,快速通达全城。
八、好配套
多主题休闲娱乐区,启幕多重美好享受
小区自带全龄图书馆、放映小剧场、共享会客厅、成人健身房、室内外儿童游乐场、共享厨房,丰富多彩的全龄休闲设备,长辈可以“以茶会”邻里更“和睦相亲,孩子可以“嬉闹玩耍”,居住在此您的生活有更多种享受。

九、好管家
知名物管,星级服务
开发商全程帮护,星级管家式服务,精细化管理,充分保证每位业主的舒适生活,让您尊崇无忧。
楼盘地址:衡阳市船山路与华新大道交汇处(阳光小学北面)